Змінено схему організації руху по вулиці Героїв УПА в місті Тячів

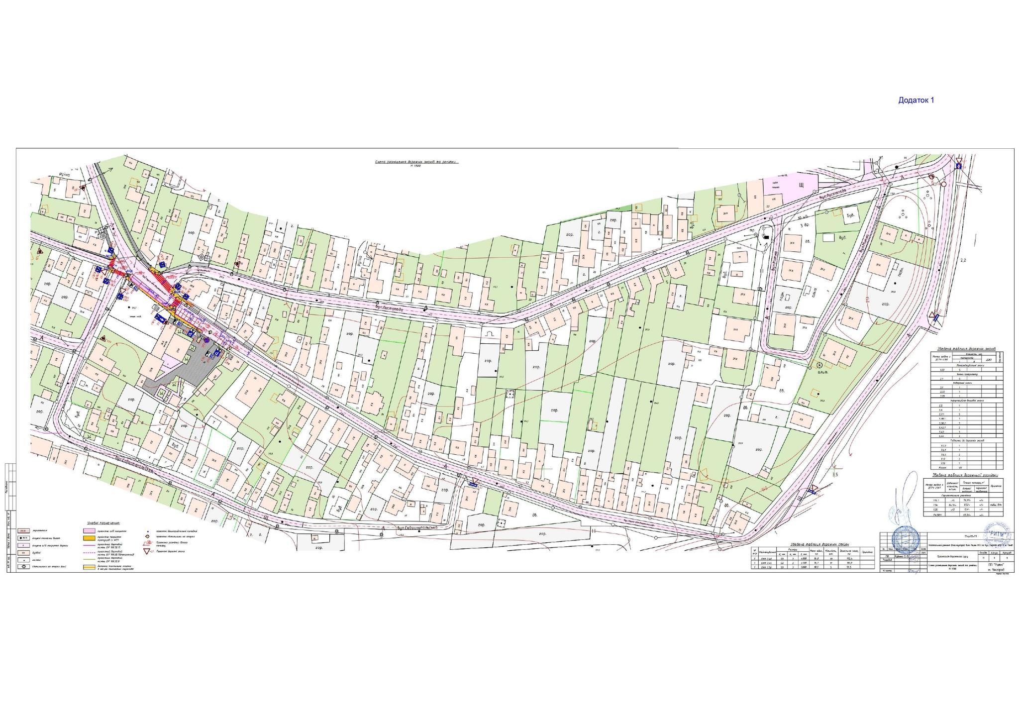
З метою забезпечення безпеки усіх учасників дорожнього руху біля ліцею № 2 по вулиці Героїв УПА в місті Тячів та за результатами осіннього комісійного огляду вулично-дорожньої мережі вулиць Тячівської громади, проведеного управлінням патрульної поліції у Закарпатській області, розроблено та затверджено схему організації дорожнього руху біля ліцею № 2 по вулиці Героїв УПА в місті Тячів. Про це інформує Тячівська міська рада.

Даною схемою затверджено односторонній рух від перехрестя вулиць Листопада-Героїв УПА у напрямку до перехрестя вулиць Ірпінська-Листопада.

Просимо учасників дорожнього руху дотримуватись правил дорожнього руху.

Залишіть коментар